WS 2025 Der unmögliche Tausch
Jihoon Min.

Lageplan
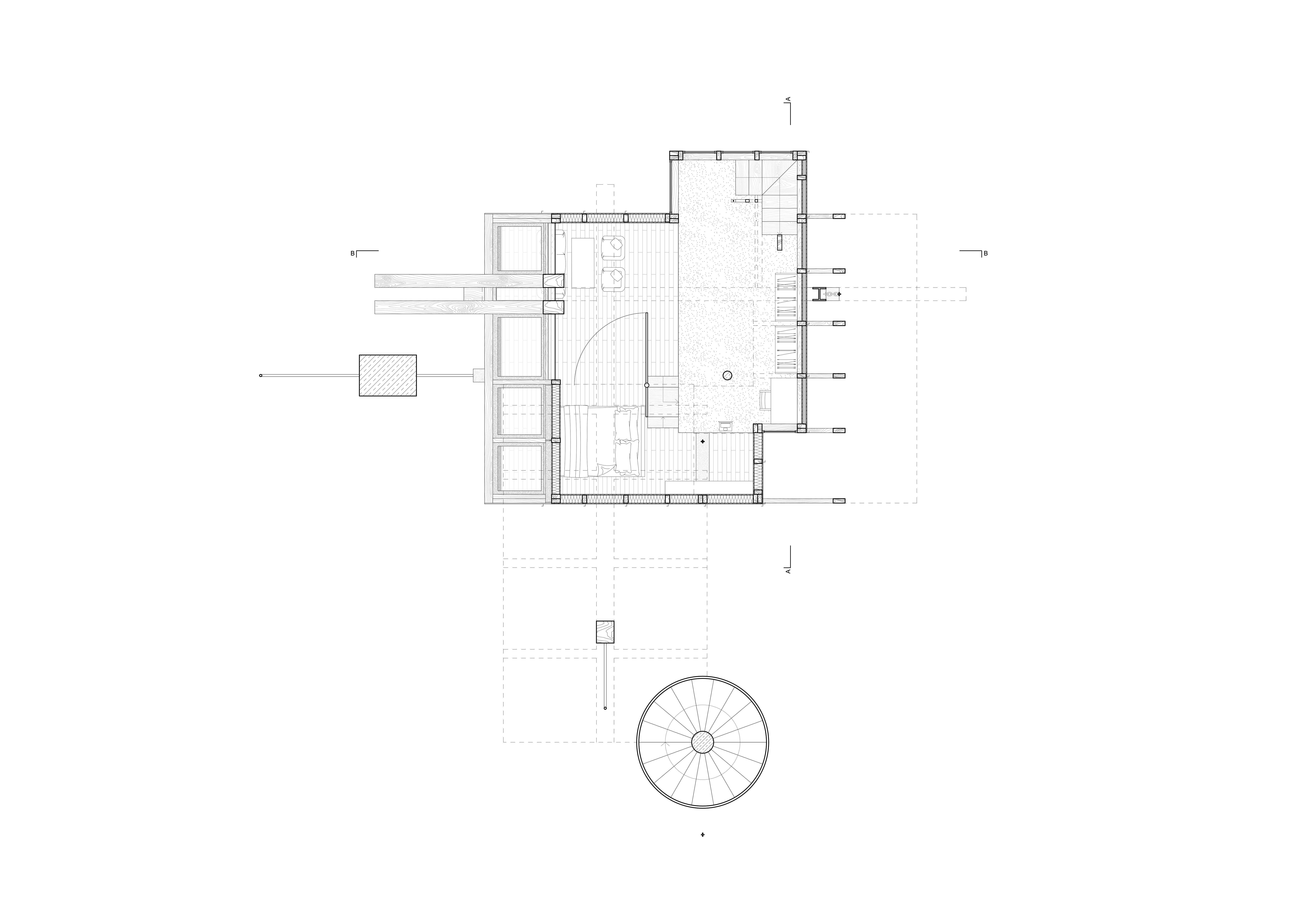
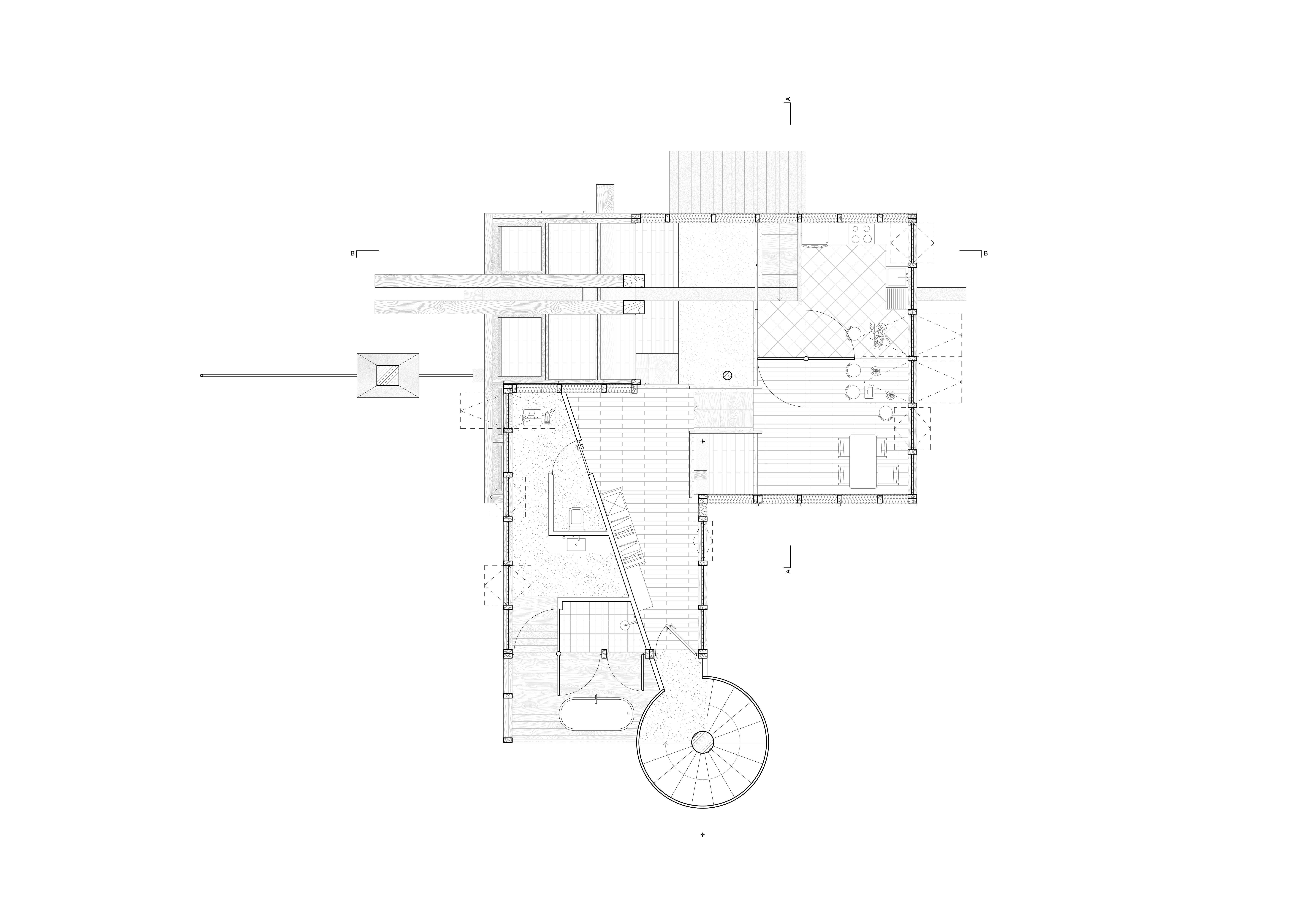
Grundriss
Grundriss
Ansicht
Ansicht
Ansicht
Ansicht
Schnitt
Schnitt
Sprengaxo
Axo

Projekt: Jihoon Min 
in Zusammenarbeit mit Jan Strasser 
Studio Der unmögliche Tausch