WS 2025 Das Konstruieren von Bildern
Dominic Janisch.

retrospektiver Architekturentwurf

Der Weg dieser Arbeit verläuft retrospektiv. Wer dem Prozess folgen möchte, beginnt am Ende und kommt hierher zurück. Wer sich zunächst dem Ergebnis widmen will, findet die Pläne im weiteren Verlauf.

Lageplan
Luftbild

Diese Arbeit ist der Versuch eines retrospektiven Architekturentwurfs.

Der Entwurfsprozess beginnt nicht mit dem ersten Strich auf einem weißen Blatt Papier.

Er beginnt nicht mit einem Raumprogramm.
Nicht mit einem Konzept.

Nicht mit einem Bauplatz.
Nicht mit einem Bestandsgebäude.

Er beginnt am eigentlichen Ende eines Entwurfs.

Szenografie
Szenografie
Szenografie
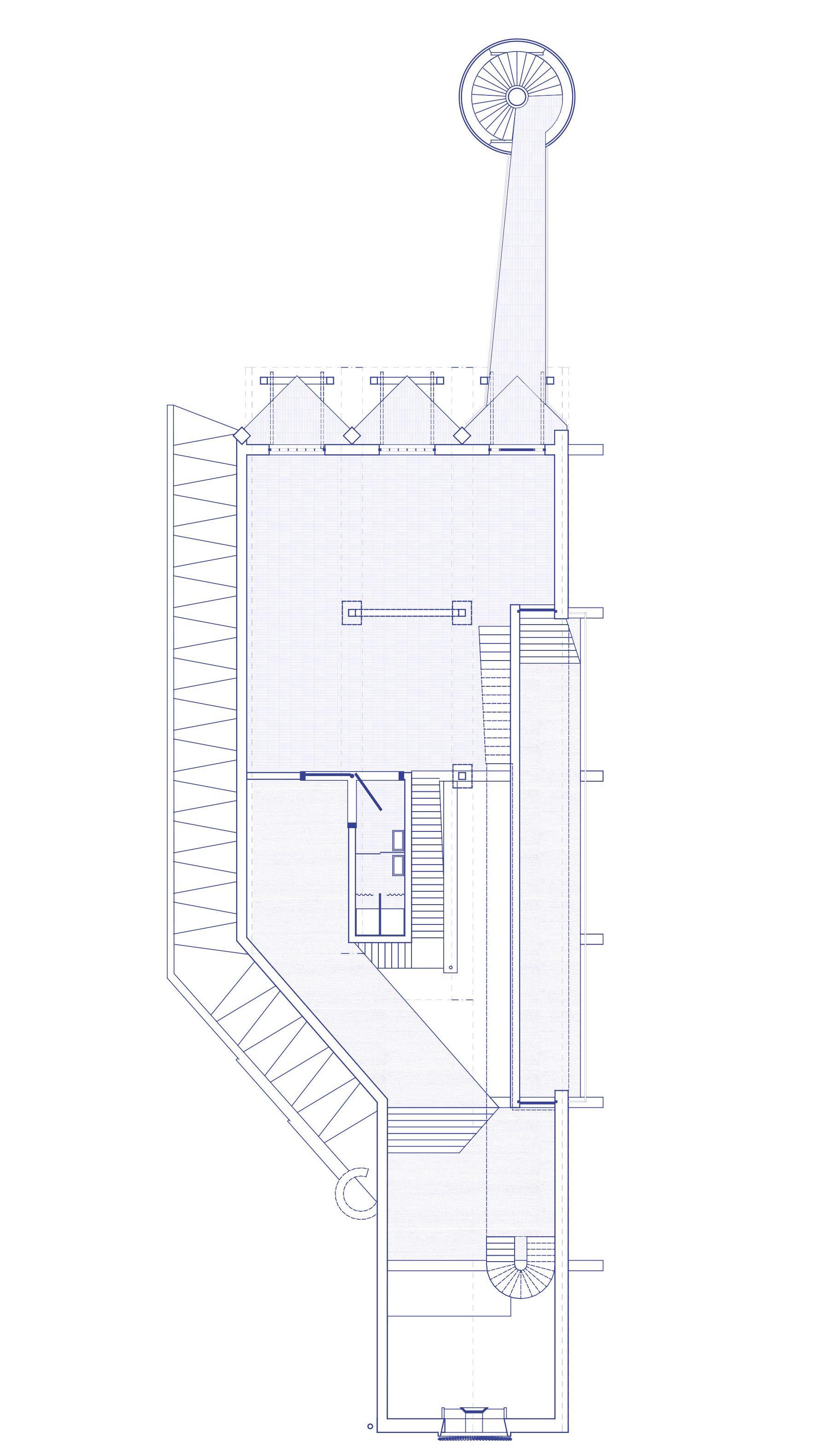
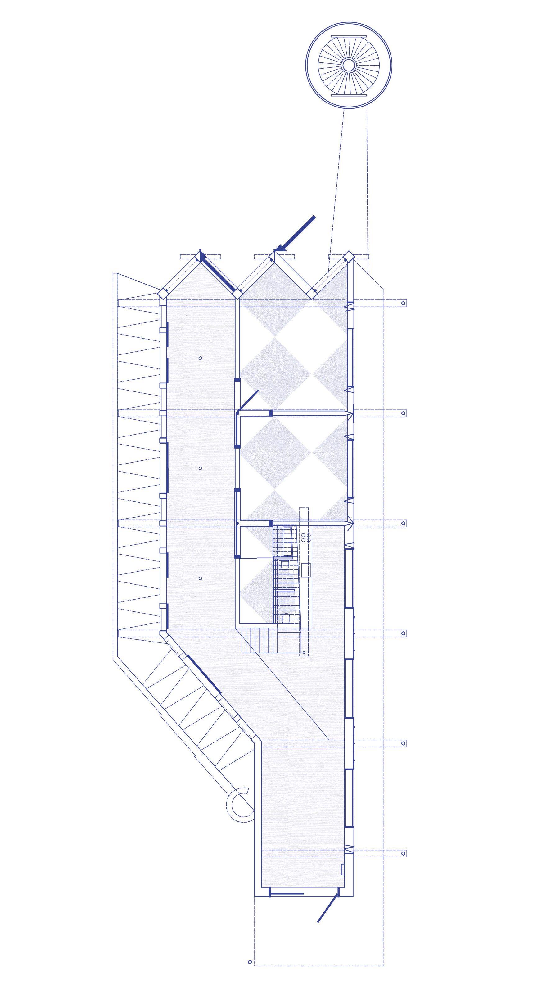
Erdgeschoss
1. Obergeschoss
2. Obergeschoss
Schnitt
Schnitt
Ansicht
Ansicht
Schnitt
Ansicht
Ansicht
Szene 2
Szene 3
Szene 4
Szene 5
Szene 6
Szene 7
Szene 8
Szene 9
Szene 10
Szene 11
Szene 12

Er beginnt mit einem Bild – einem Bild, das aus der Kollision zweier Realitäten entsteht: der gebauten und der ungebauten.

Die gebaute Realität wird fotografisch festgehalten – eine Momentaufnahme von Situationen, die nicht in direkter Beziehung zueinander stehen.

Diese Aufnahmen werden fragmentiert, reduziert – es entsteht Raum.

Auf Grundlage dieser Bruchstücke wird eine neue, ungebaute Realität konstruiert.

Fragmente einer Szene, die für sich genommen unvollständig bleiben – und erst durch ihre Verschmelzung mit der ursprünglichen Situation zu einem neuen Bild werden.

Diese Bilder wiederum generieren Fragmente eines Plans,
die sich schließlich zu einem Haus fügen.

 

 

 

Von der Situation zum Fragment. Vom Fragment zur Konstruktion. Von der Konstruktion zum Bild. Vom Bild zum Plan.

Szene 12, Plandarstellung
Bild
Konstruktion
Situation

„Die spekulative Kraft der Architektur besteht darin, den Dingen einen Wert zu geben. Jeder Entwurf ist Neubewertung. Des Ortes, der Bauaufgabe, der vorhandenen Mittel, und der eigenen Absicht.“

Die letzte Szene blickt hinter die Erste – nicht als Wiederholung, sondern als Antwort. Denn das Ende ist nur die andere Seite des Anfangs.

Szene 11, Plandarstellung
Bild
Konstruktion

“At first we are made to believe that this architect deals with earth and sky. He digs down into the earth and he builds up into the sky [....] Then we realize that Raimund Abrahams moment is that moment when the uppermost surface of the earth contacts the undermost surface of the sky.”

Architektur kennt nur zwei Wege: über den Horizont oder darunter. Entscheidet man sich, über den Horizont zu gehen, verändert man unweigerlich, wie das Wasser ihm begegnet.

Szene 10, Plandarstellung
Bild
Konstruktion
Situation

„....from the outside, the wall - the point of change - becomes an architectural event.“

Szene 9, Plandarstellung
Bild
Situation

„Designing from the outside in, as well as the inside out, creates necessary tensions, which help make architecture. Since the inside is different....“

Szene 8, Plandarstellung
Bild
Konstruktion
Situation

Was fest erscheint, gibt nach. Ein Moment der Wandlung irgendwo zwischen Wand und Tür, Stütze und Scharnier.

Szene 7, Plandarstellung
Bild 1
Bild 2
Bild 3

Die drei Öffnungen heben Hierarchien auf. Jeder angrenzende Raum wird gleichwertig – als Teil eines offenen Systems, das auf Beziehung statt Rangordnung basiert.

Konstruktion
Situation

Eine Tür, zwei Flügel und drei Öffnungen.

Die Situation gibt die Proportion vor. Die gebaute Realität wird zum Ordnungsraster – das Ungebaute antwortet darauf, präzise, suchend, fast gezeichnet.

Szene 6, Plandarstellung
Bild
Konstruktion

Nach Bernard Tschumi besteht Architektur nicht nur aus physischem Raum, sondern ebenso aus den Ereignissen, die darin geschehen, und den Bewegungen der Menschen, die ihn durchqueren.

Leicht und Schwer halten sich in der Waage. Sie greifen ineinander. Sie funktionieren nur miteinander. Jede Berührung zählt - nur gemeinsam entsteht Balance.

Szene 5, Plandarstellung
Bild
Konstruktion
Situation

Ein Arbeitsmodell muss weder geklebt noch exakt sein. Es lebt durch die Möglichkeit
der Transformation. Das Streben nach Perfektion führt dazu, dass frustriert Ideen ausrangiert werden, ohne sie jemals zu Ende zu denken.

“There Are Things Known, and Things Unknown, and In between Are the Doors”

Eine Tür muss nicht geöffnet sein, um einen Raum zu zeigen. Durch ihre Position weist sie den Wänden den Weg. Ihre Proportionendefinieren alle Raumachsen gleichermaßen, sowohl die X, Y als auch die Z.

Szene 4, Plandarstellung
Bild
Konstruktion
Situation

Was schützt, zeichnet aus. Der Hut wird zur Schwelle, die Schwelle zum Versprechen. Stahl wird zum Rahmen für Ordnung und Struktur.

Szene 3, Plandarstellung
Bild
Situation

„Fragments of a vessel which are to be glued together must match one another in the smallest details, although they need not be like one another. [...] making bothe the original and the translation recongnizable as fragments of a greater language, just as fragments are part of a vessel.“

Szene 2, Plandarstellung
Bild
Konstruktion
Situation

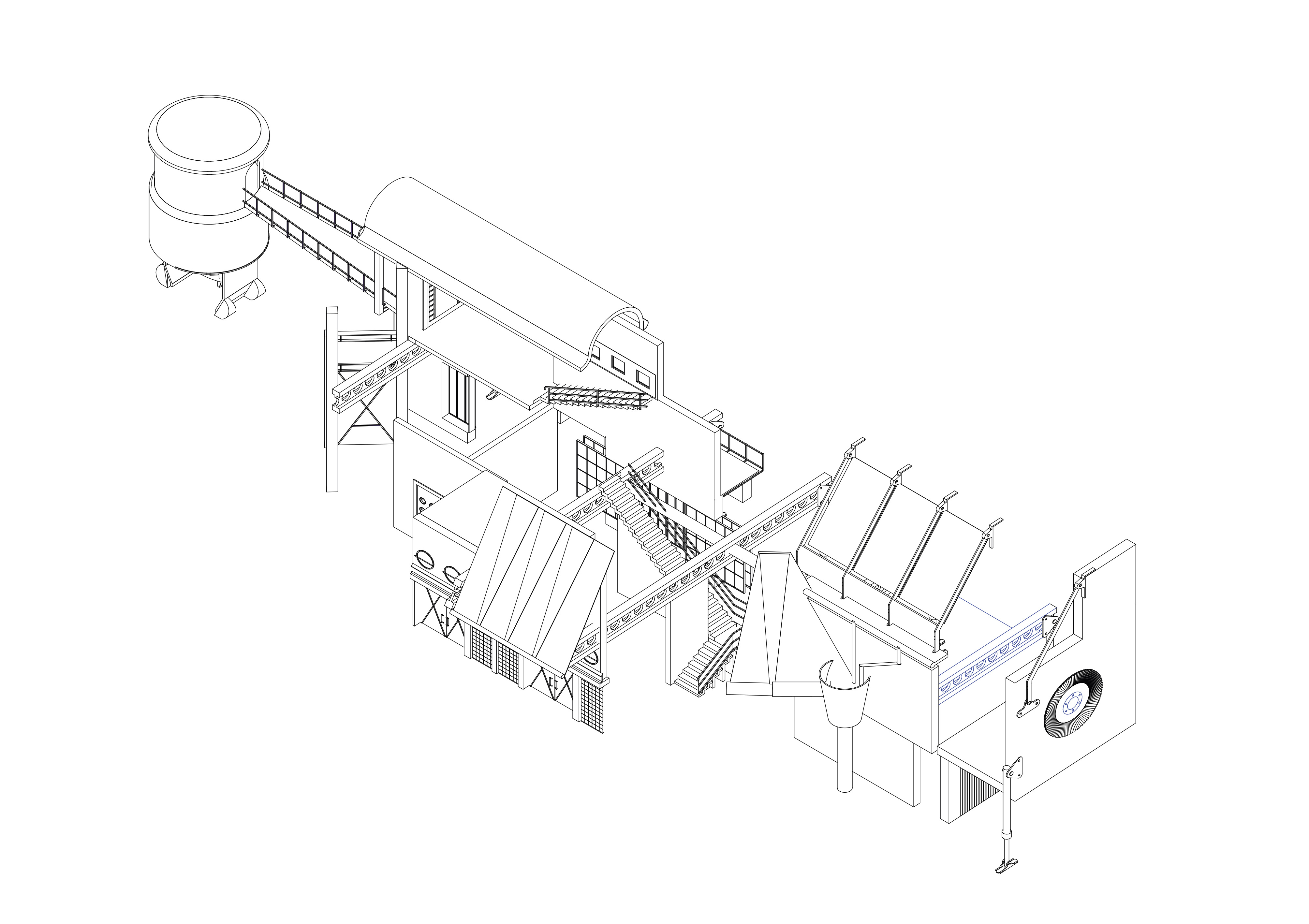
Was sich öffnet, bleibt verschlossen. Was verschlossen scheint, gibt sich preis. Zwei gegensätzliche Prinzipien verzahnen sich – ein stummes Gespräch aus Metall. Gemeinsame Gegensätze greifen wie Zahnräder ineinander.

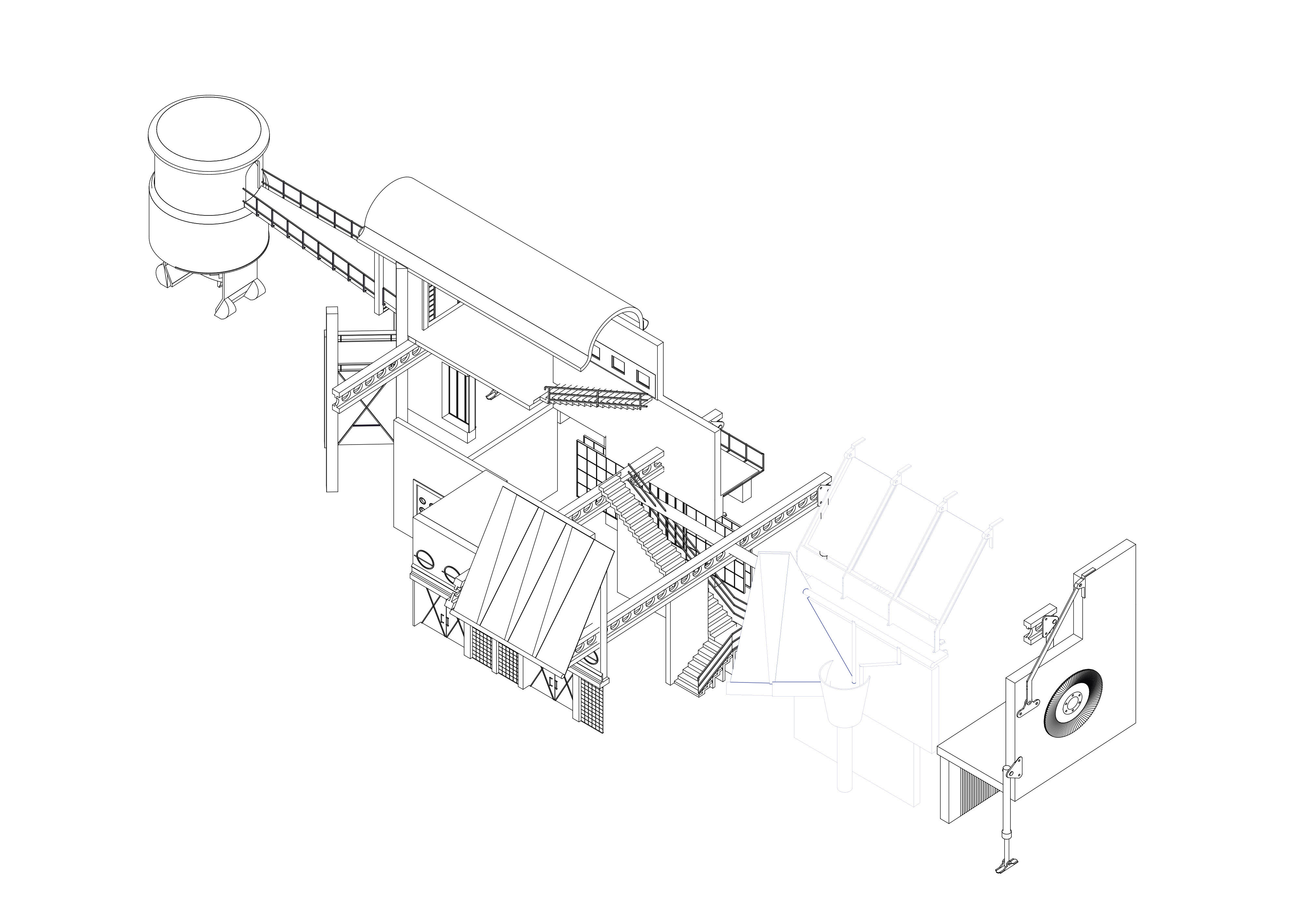
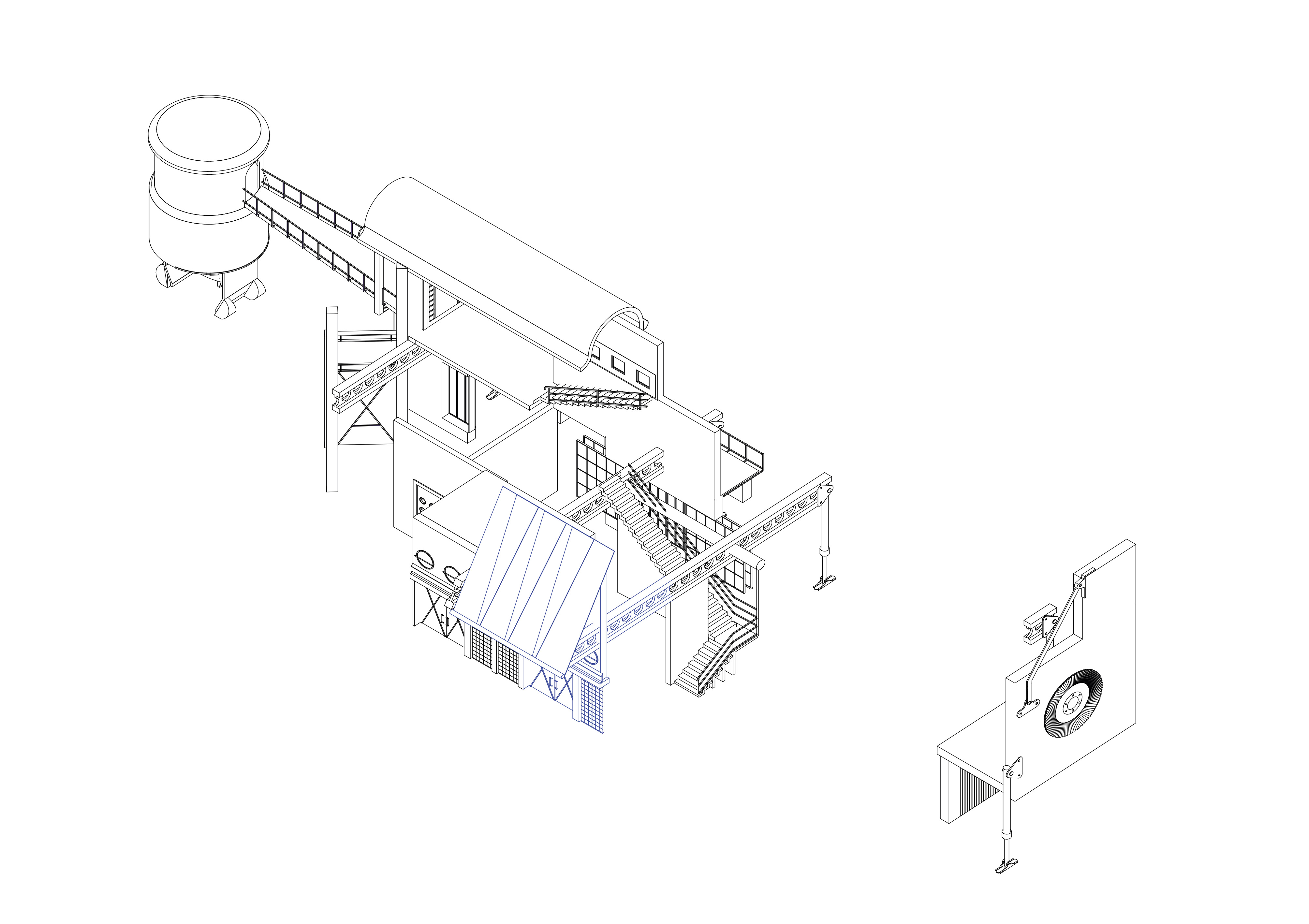
Szene 1, Plandarstellung
Bild
Konstruktion

Eine Metamorphose beginnt, wenn ein architektonisches Element aus seinem Ursprünglichen Zusammenhang gelöst und in einem neuen – vielleicht fremden – Umfeld verwendet wird. Durch diesen Akt der Aneignung kann das Vertraute fremd wirken und das Gewohnte eine neue Bedeutung bekommen. 

Der Wechsel des Zusammenhangs verändert die Bedeutung von Objekten und Fragmenten. Wenn Erwartetes und Unerwartetes aufeinandertreffen – und Zufall eine Rolle spielt – entsteht ein neues Gefüge aus Werten, das über Zeit und Ort hinausweist. 

Ein Objekt aus einem System oder Struktur herauszulösen und in ein anderes zu einzugliedern, kann verschiedene Reaktionen hervorrufen: Nostalgie, Überraschung, Freude oder Irritation. Der Akt der Übersetzung – das neue Lesen und Deuten – eröffnet die Möglichkeit, die gebaute Welt neu zu bewerten. 

Die Konstruktion von Bildern ist nicht maßstäblich. Sie ist proportional, die Dimension der ungebauten Realität steht im direkten Verhältnis zur gebauten Welt.

Nachbarschaft bedeutet Nähe. Auch wenn der Nachbar über mir klar von mir getrennt ist, beeinflusst er die Atmosphäre des Hauses. Die klare Trennung zwischen uns hemmt unseren Dialog nicht, sie definiert ihn.

 

 

 

Project by: Dominic Janisch

Supervisor Alex Lehnerer