WS 2025 Die sieben Tore von Sarajevo
Anela Milkić.

Das Thema dieser Masterarbeit konzentriert sich auf die Analyse und Reinterpretation des urbanen Phänomens, das in diesem Kontext als „Die 7 Tore von Sarajevo“ bezeichnet wird. Dieser Begriff umfasst eine einzigartige Abfolge von Lücken zwischen Wohngebäuden, die durch Tore verbunden sind. Architektonische Elemente, die als Übergangszonen zwischen öffentlichem und privatem Raum fungieren. Diese Tore sind alltägliche und oft übersehene Bestandteile einer Straße in Sarajevo, die im historischen Gefüge der Stadt verankert ist. Dennoch tragen sie durch ihre Anordnung und die entstehenden leeren Räume dahinter zur Wahrnehmung und Strukturierung des urbanen Raums bei. Diese Arbeit widmet sich insbesondere der Frage, wie diese oft vernachlässigten Orte, die derzeit kaum Beachtung finden, analysiert, interpretiert und gestalterisch neu gedacht werden können.

Ursprünglich war die Forschung auf sogenannte „Baulücken“ fokussiert, mit dem Ziel, diese durch architektonische Interventionen in funktionale Wohnobjekte zu transformieren. Weitere Analysen haben jedoch gezeigt, dass innerhalb dieser urbanen Komposition, doch die Tore, eine zentrale Rolle einnehmen. Dieses Erkenntnis führte dazu, dass die Tore, zusammen mit den Baulücken, als Hauptfokus dieser Arbeit definiert wurden. Die Tore sind nicht nur passive Elemente zwischen Gebäuden, sondern beeinflussen aktiv die entstehenden neuen Strukturen und die geplante Architektur hinter ihnen. Sie prägen die zukünftigen Gebäude, indem sie Eigenschaften wie Proportionen, Materialität und Details in die Gestaltung der neuen Architektur integrieren. Gleichzeitig bieten sie Raum für die Frage, ob die neuen Gebäude sich in die bestehende Umgebung „einschmelzen“ sollen oder durch moderne, kontrastreiche Gestaltungen hervorgehoben werden.

Umrisskarte
Region
Schwarzplan
Lageplan

Besonders interessant an den Baulücken ist, dass sie durch die festen Rahmenbedingungen – wie die Höhe der angrenzenden Gebäude, die Materialität, sowie die räumliche Beziehung zwischen den Fassaden und den Toren – eine einzigartige Grundlage für gestalterische Experimente bieten. Diese Arbeit untersucht, wie diese Tore als vordere Fassaden behandelt werden können und wie ihre formale und funktionale Transformation die Beziehung zwischen Vergangenheit und Gegenwart widerspiegeln kann. Die neuen Gebäude, die in den Baulücken entstehen, greifen die Eigenschaften der Tore auf und entwickeln diese weiter, um eine harmonische Verbindung mit den bestehenden Nachbargebäuden zu schaffen. Dabei wird ein Gleichgewicht zwischen Kontinuität und Innovation angestrebt, um einen spezifischen Ort mit neuer Identität zu schaffen. Das Tor wird somit nicht nur als räumliche Verbindung verstanden,

sondern auch als Schlüsselmotiv, das Form, Funktion und Ästhetik der neuen Objekte innerhalb dieser Lücken artikuliert. Die Arbeit stützt sich auf eine Kombination aus analytischem und kreativem Ansatz. Zunächst wurde eine detaillierte Analyse der Lücken und Tore der Straße durch fotografische und räumliche Dokumentation durchgeführt, um ihre formalen, funktionalen und symbolischen Aspekte zu verstehen. Basierend auf diesen Daten wurde ein konzeptioneller Rahmen für architektonische Interventionen entwickelt, der sich auf Nachhaltigkeit, Anpassungsfähigkeit und die Achtung des kulturell-historischen Kontextes konzentriert. Mit dieser Arbeit soll eine neue Perspektive auf die Möglichkeiten der architektonischen Revitalisierung von Lücken im städtischen Gefüge eröffnet werden, wobei der Bedeutung der Tore als ästhetische und funktionale Elemente besondere Aufmerksamkeit geschenkt wird.

Gesamtgrundriss
Gesamtansicht
TOR 1

Das erste Tor dient als Ausdruck des entstehenden Gebäudes und bildet zugleich eine eigenständige architektonische Identität, die eine gestalterische Verbindung zwischen Bestand und neuer Struktur schafft. Um eine gestalterische Verbindung zu schaffen, sind die vertikalen Linien des Tores übernommen und weitergeführt, die zwei oberen Öffnungen des Tores in Fenster umgewandelt, sodass sie nicht nur ästhetisch, sondern auch funktional in das Gesamtkonzept integriert werden. Mit dem Ziel, diese Torstruktur nicht nur als Eingangselement zu betrachten, sondern als Ausgangspunkt für die Entwicklung einer neuen Fassade. Dabei wird die Fassade des neuen Gebäudes aus der vorderen Ansicht des Tores heraus entwickelt.

Ein Tor, nicht Grenze, sondern Beginn, wo Linien fließen, Raum gewinnt. Vergangenheit in Form gegossen, von neuer Haut umschlossen.

Grundriss EG
Grundriss OG1/OG2
Schnitt
Ansicht
TOR 2

Das zweite Tor ist ein klassisches Metalltor mit integrierter Tür. Um die Höhen an das benachbarte Gebäude anzupassen, wurde das Tor entsprechend verlängert und eine Verbindung erschaffen, durch Geschossigkeit, wo sich die Tür wiederholt. Keine Öffnungen, da das ursprüngliche Tor – abgesehen von der Tür – ebenfalls geschlossen ist. Zusätzlich wurde das Tor als Fassadenelement weitergeführt, Teilung der metallischen Platten, wodurch eine außergewöhnliche Ansicht entsteht, die durch die Materialität des Metalls besonders hervorgehoben wird.

Ein Tor aus Stahl, geschlossen, still, doch wächst es hoch, so wie es will. Die Tür kehrt wieder, Takt und Maß, ein Spiel aus Platten, kühl und klar.

Grundriss EG
Grundriss OG1
Schnitt
Ansicht
TOR 3/4

Das dritte Tor unterscheidet sich von den vorherigen, da es ein Dach besitzt. Während die ersten beiden Tore ohne Dach konzipiert wurden, wird dieses nun zu einem prägenden Bestandteil der Gestaltung. Jedes der drei Geschosse, erhält ein eigenes Dach, wodurch sich eine klare Struktur und Rhythmik im Erscheinungsbild ergibt. Ebenso wie die bereits etablierten Rasterstrukturen, die jedem Abschnitt ein Fenster zuordnen. Dadurch bleibt die Gestaltung einheitlich, während sich die vertikalen, länglichen Öffnungen als charakteristisches Element durchziehen. Der Hauptfokus liegt somit auf den Dächern, die das Erscheinungsbild maßgeblich prägen und dem Tor eine markante, eigenständige Identität verleihen.

Dächer erheben sich mit Stolz, verleihen dem Tor seinen eigenen Zoll. Die Öffnungen, so lang und klar, zeichnen das Bild, so wunderbar.

Das vierte Tor das direkt an das dritte Tor angrenzt, hebt sich von den vorherigen durch die markante Verlängerung seines Dachs ab. Das Dach des vierten Tors erstreckt sich deutlich weiter und schafft so eine räumliche Verbindung zwischen dem Tor und dem weiter hinten liegenden Gebäude. Das Prinzip der Wiederholung und Anpassung, bleibt erhalten, während gleichzeitig eine neue Dimension hinzugefügt wird – die Verlängerung als Mittel zur räumlichen Kontinuität.

Das Dach, es streckt sich weit und lang, verbindet den Raum, macht alles dann, die Dimension, sie wächst im Raum, das Tor verbindet, gibt einen neuen Raum.

Grundriss EG
Grundriss OG1
Grundriss OG2
Schnitt (Tor 3)
Schnitt (Tor 4)
Ansicht
TOR 5

Das fünfte Tor zeichnet sich durch dasselbe wellenförmige Blech sowohl für das Dach als auch für die Fassade. Die Struktur ist in ihrer Einfachheit, eine schwarze Tür mit zwei Nebenstücken bildet das Zentrum, das wie ein schwarzer Fleck wirkt, der sich in den Raum integriert. Dieser „schwarze Fleck“ wird durch die Linienführung weitergeführt und zieht sich vertikal nach oben. Das Tor folgt dabei einem klaren Konzept der Erweiterung: Anders als bei den vorherigen Toren, bei denen das Dach als wiederholendes Element in mehreren Geschossen auftaucht, wird das Dach hier über drei Etagen hinweg gestreckt. Die vertikale Ausdehnung des schwarzen Flecks verstärkt die Wirkung des Tors. Diese Verlängerung nach oben verleiht dem Tor eine klare, geometrische Präsenz, die in den Raum hineinragt. Insgesamt ist das fünfte Tor ein Beispiel für die subtile Transformation eines einfachen Elements.

Wellen und Linien, sanft gezogen, das Tor, das in den Raum hineingewogen. Ein schwarzer Fleck, der sich erhebt, der in der Struktur weiterlebt.

Grundriss EG
Grundriss OG1
Grundriss OG2
Schnitt
Ansicht
TOR 6

Das sechste Tor, im Gegensatz zu den anderen Toren, die durch ihre vertikale Ausdehnung auffallen, bleibt dieses Tor eingeschossig und folgt einer klar horizontalen Linie. Es ist ein schlichtes Element, das wie ein Rahmen wirkt. Dieser Rahmen zieht sich nur im Grundriss weiter und definiert so den Raum. Das Tor ist so entstanden, das es in Ansicht, zwei benachbarten Häuser verbindet. Beide Gebäude „spüren“ das Tor, es zieht sich durch beide Häuser hindurch. In seiner Gestaltung ist das sechste Tor also ein Statement der Einfachheit und Kontinuität, das den Fokus auf den horizontalen Zusammenhang legt und die beiden Gebäude in ihrer Gesamtheit verbindet.

Ein Rahmen, der den Blick lenkt, klar und rein, das Tor zieht sich durch zwei Räume hinein. Ein Band, das Verbindung schafft, die Häuser, die es sanft umfasst.

Grundriss
Schnitt
Ansicht
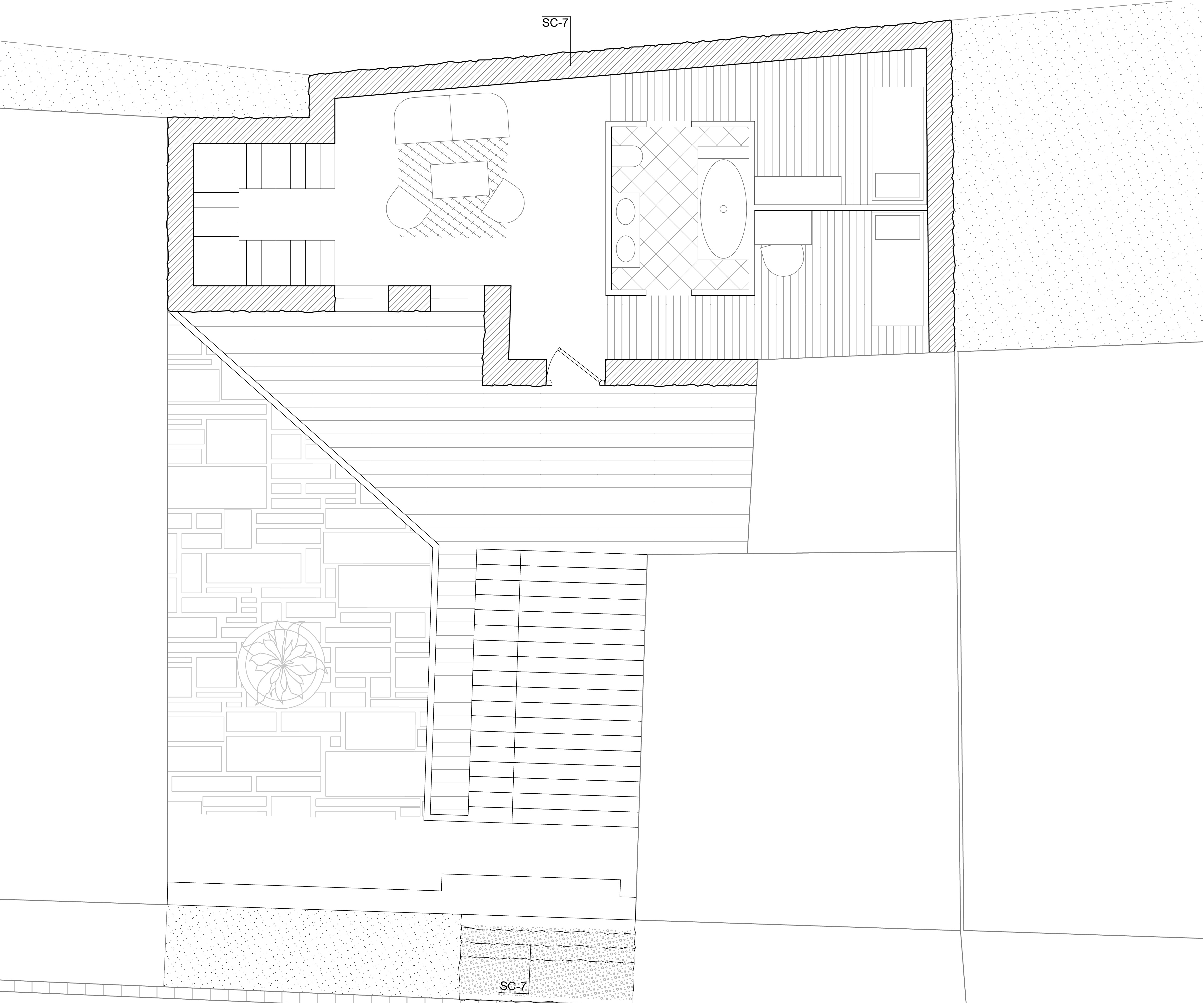
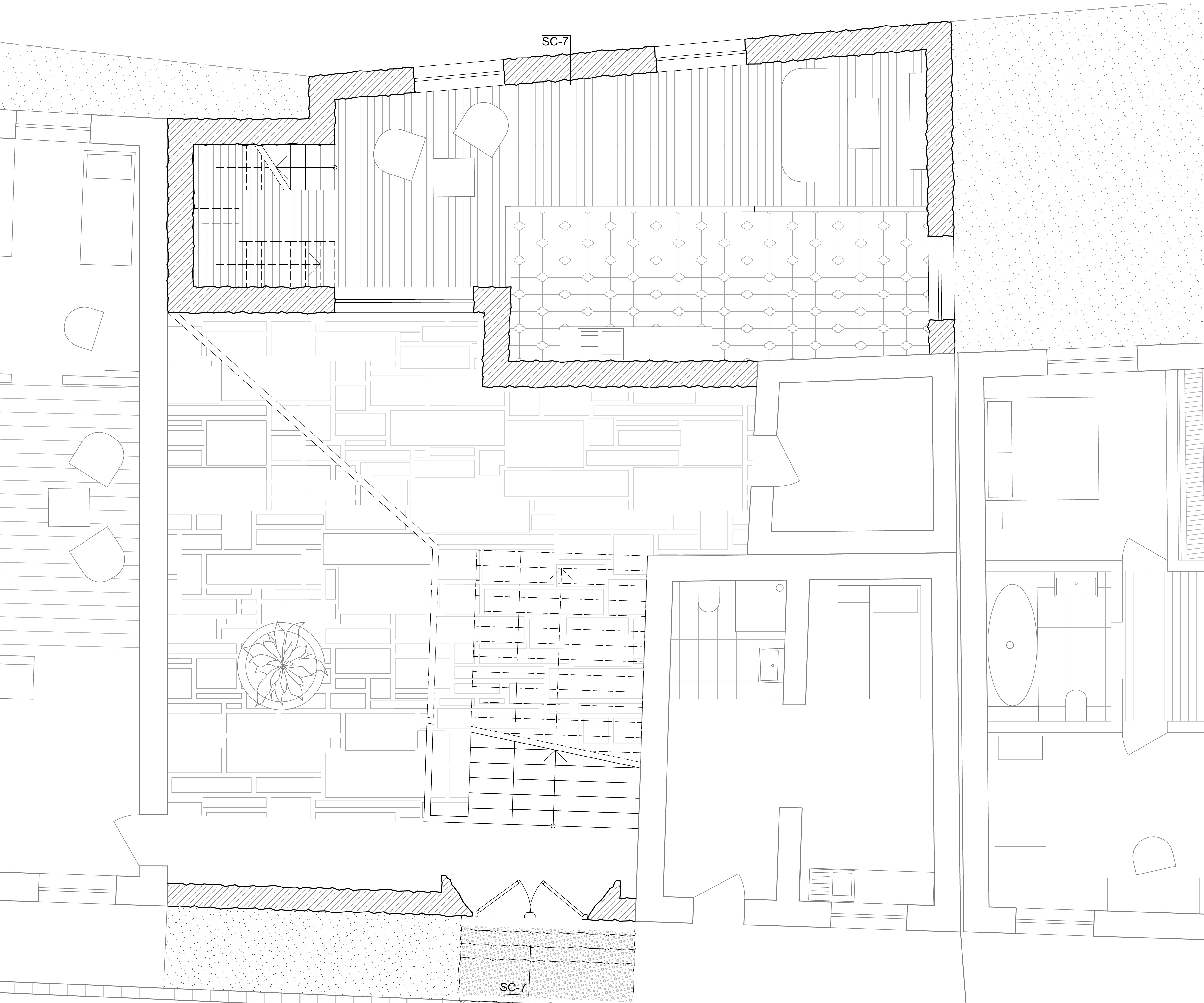
TOR 7

Das siebte Tor ist das längste Tor in der gesamten Reihe, was ihm eine gute Präsenz verleiht und es verfügt über eine Reihe von Stufen, die den Zugang zur Tür ermöglichen. Diese Treppenführung, trägt auch ästhetisch zur Gestaltung bei, indem sie den vertikalen Raum betont und eine Verbindung zum oberen Geschoss herstellt. Ein weiteres Merkmal, ist der große, leere Platz hinter ihm, der als Bindeglied zwischen drei benachbarten Gebäuden fungiert. Dieser Raum wird als gemeinschaftlicher Ort – eine Art „Avlija“ – konzipiert. Diese bosnische Tradition, die Raum für Geselligkeit und Zusammenkunft bietet. Die Proportionen des Tors, wurden beibehalten, um eine harmonische Integration in die Gesamtkomposition zu gewährleisten. Besonders die Treppen, die hinter dem Tor weitergeführt werden und das zweite Geschoss erreichen, tragen zur Funktionalität und Ästhetik des Tors bei. Alles in allem steht das siebte Tor nicht nur für eine bauliche Übergangsform, sondern auch für eine soziale und kulturelle Verbindung innerhalb des Gesamtkomplexes.

Ein Tor, das lange Wege zeigt, mit Stufen, die der Raum bewegt. Es führt nach oben, bindet an, und öffnet Platz für jedermann.

Grundriss EG
Grundriss OG1
Schnitt
Ansicht

Durch diese Arbeit wurde eine neue architektonische Perspektive auf die Tore und Baulücken einer Straße in Sarajevo eröffnet. Anstatt sie als rein funktionale Durchgänge zu betrachten, wurden sie als gestaltprägende Elemente analysiert und weiterentwickelt. Die vorgeschlagenen Interventionen greifen die bestehenden räumlichen Qualitäten der Tore auf und transformieren sie zu aktiven Schnittstellen zwischen Vergangenheit und Zukunft. Die sieben verschiedenen Konzepte verdeutlichen, wie durch die Übernahme, Transformation oder Fortführung der bestehenden Materialität, Proportionen, Elemente und Strukturen, eine Weiterentwicklung der Umgebung erreicht werden kann. 

Jedes neue Element übernimmt die Charakteristika der Tore, des Zwischenraums und der benachbarten Gebäude und interpretiert sie auf individuelle Weise, wodurch eine klare Fortsetzung der Struktur entsteht, ohne dabei die Identität des Ortes zu verlieren. Dieser Ansatz führt zu einer Neubewertung der Straße. Für die Anwohner bleibt die vertraute Atmosphäre erhalten, während die neuen Gebäude gleichzeitig eine Bereicherung darstellen. So entsteht eine Architektur, in der selbst kleinste strukturelle Elemente wie Tore als konzeptionelle Basis dienen können.

Project by: Anela Milkić

Supervisor Alex Lehnerer