SS 2025 Das Machiya und Graz
Lois Xaver Yukio Stoisser.

Diese Masterarbeit befasst sich mit Machiyas – einer traditionellen japanischen Bautypologie. Ziel ist es diese in einen neuen Kontext zu übertragen – konkret auf ein Grundstück im Bezirk Lend, in der Stadt Graz. Es handelt sich dabei um den Versuch einer Übersetzung, einer Vereinbarung zweier Gegensätze. Dieser zielt nicht darauf ab, die japanische Bauweise einfach nach Graz zu transferieren, sondern vielmehr geht es darum ihre grundlegenden Prinzipien und Besonderheiten in einer neuen Umgebung zu betrachten und daraus neue Qualitäten zu generieren. 

Machiyas verkörpern viele der typischen Merkmale japanischer Baukunst. Machiyas bieten räumliche Elemente, atmosphärische Qualitäten und Nutzungsformen, die auch in anderen kulturellen und städtebaulichen Kontexten möglich oder wünschenswert sein könnten. Genau hier setzt dieser Versuch an. Diese Übersetzung findet in unterschiedlichem Umfang und auf verschiedenen Ebenen statt: sie bezieht sich sowohl auf das Große – wie den städtebaulichen Kontext – als auch auf das Kleine – wie spezifische bauliche Details. 

In dieser Arbeit entsteht durch das Vermischen des Grazer Blockrands und der länglichen Struktur der Machiyas eine teppichartige Grundrissstruktur. Die reine Holzbauweise der Machiyas wird in eine hybride Bauweise mit Integration von Mauerwerk transformiert, was dem Gebäude eine neue strukturelle Lesbarkeit verleiht. Dieser Entwurf ist das Ergebnis zahlreicher Überlegungen, die zwischen den materiellen, funktionalen und räumlich spürbaren Besonderheiten des Machiyas und dem strengen Europäischen Kontext hin- und herpendeln. 

Die bewusste Auseinandersetzung mit diesen zwei Kontrasten und der damit einhergehenden Spannung, resultieren in einer eigenen architektonischen Lösung. Das Endprodukt stellt eine planliche Ausarbeitung eines konkreten Projektes, sowie die Fertigung eines Modells dar. Letzteres zeigt die Dichte der verwendeten Konstruktion und löst ein Flimmern, beziehungsweise Oszillieren aus, das beinahe zu einer Unlesbarkeit des Baukörpers führt.

Machiya

Das Machiya ist eine traditionellen japanischen Siedlungsarchitektur. Der Name setzt sich aus zwei Teilen zusammen: „machi“ – Stadt und „ya“ – Haus. Diese „Stadthäuser“ weisen oftmals integrierte Geschäfte sowie Werkstätten auf und sind generell Orte für händlerische Tätigkeiten. Die ersten Machiyas entstanden bereits in der Heian-Zeit (794-1185). Etabliert hat sich diese Bautypologie aber erst in der Edo-Zeit (1603-1868). Der ökonomische Aufschwung in dieser Epoche, der sich vor allem auf den Wohlstand der Händler auswirkte, hatte rege Bautätigkeit zur Folge. Die Händler begannen in dieser wirtschaftlich günstigen Zeit, vermehrt Machiyas für ihre Wohn- und Geschäftstätigkeiten zu errichten. 

Dies war vor allem in Kyoto der Fall, wodurch der örtliche Stil der „Kyo-Machiyas“ entstand. Dieser verbreitete sich überregional und beeinflusste große Teile Japans. Neben der Dichte an Geschäften, spielte Kyotos topographische Beckenlage, die begrenzten Baugrund bot, eine wesentliche Rolle in der Entwicklung dieser ortstypischen Grundrissform der Machiyas. Sie zeichnet sich durch die schmale Straßenfassade bei gleichzeitig erheblicher Gebäudetiefe aus. Generell gibt es für Machiyas stilistische Differenzierungen zwischen unterschiedlichen japanischen Städten, die sich durch besondere topographische Lagen und Funktionen, z.B. als Festungsstadt, oder durch verschiedenste kulturelle Einflüsse entwickelten. Diese Arbeit bezieht sich ausschließlich auf die Bautypologie der „Kyo-Machiyas“ als Hauptreferenz.

In der nebenstehenden Grafik ist ein typischer Kyo-Machia Grundriss dargestellt. Von der Straßenseite links beginnt die Raumnutzung mit dem halb-öffentlichen Verkaufsraum und wird mit weiterem Fortschreiten ins Machiya immer privater, bis hin zu den im Obergeschoss befindlichen Schlafräumen.

Struktur und Räume eines Machiya
Holzkonstruktion eines Machiya
Daimochi-tsugi Verbindung
Sage-kama Verbindung
längliche Standardverbindungen

Es handelt sich um eine Art Holzständerkonstruktion, die ohne diagonale Aussteifungen auskommt. Das dreidimensionale Stabgitter wird durch ein dichtes Netz an „Nuki“ (feine horizontale Streben) ausgesteift. Diese Bauart sorgt jedoch für eine geringe strukturelle Stabilität, weshalb oft im Nachhinein Auskreuzungen zur Stabilisierung eingezogen wurden. Der große Vorteil dieser Struktur zeigt sich in der freien Grundrissgestaltung und dem oft fließenden Übergang zwischen Wand und Öffnung.

Die fehlende Weiterentwicklung dieser Konstruktionsweise und ihre daraus resultierende „Primitivität“ lassen sich vermutlich auf ökonomische, klimatische und geologische Faktoren zurückführen. Diese „Einfachheit“ bezieht sich jedoch nur auf das System und nicht auf die Ausführung. Jahrhunderte an Hingabe zum Detail und eine unveränderliche Bauweise führten unter anderem zu den bekannten japanischen Steckverbindungen. 

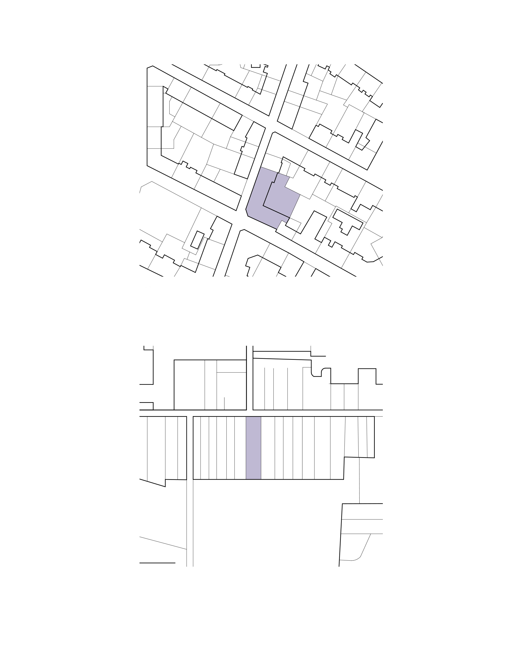
Graz
Lend

Entwurf

Der Bauplatz des Entwurfs befindet sich in Graz, im Bezirk Lend, genauer gesagt an der Adresse Lendplatz 44. Der Ort wurde deshalb gewählt, weil die Nutzung des umliegenden Gebietes stark derjenigen der Machiyas ähnelt. 

Die unterschiedlichen Funktionen wie Handel, Gewerbe, Gastronomie, etc. beleben die direkte Umgebung und sorgen für eine hohe Passant:innenfrequenz, wie es unter anderem auch für die Machiyas in der damaligen Handelsstadt Kyoto der Fall war. Außerdem bietet der an der Ecke situierte Bauplatz, mit beinahe quadratischer Grundform, eine interessante Ausgangslage und Herausforderung, um sich mit der länglichen Grundform und der schmalen Straßenfassade der Machiyas auseinander zu setzen.

Städtebaulich gesehen, befindet sich der Bauplatz in einer aufgelösten Blockrandstruktur, die unteranderem zu einem heterogenen Gebiet mitwirkt. Gute Beispiele für die Heterogenität sind die direkt an den Entwurf angrenzenden Bauten, die ein breites Spektrum an Form- und Nutzungsvielfalt abdecken. Es sticht vor allem das Gebäude im Zentrum des Lendplatzes hervor, das nicht nur durch seine Nutzung, sondern auch in der Leichtigkeit der Konstruktion, ein passendes Gegenüber darstellt.

Blockrandbebauung (oben) und Städtebau der Machiyas (unten)

Der Städtebau der Machiyas, zeichnet sich durch längliche, schmale Grundstücksparzellen aus. Grund für diese Form war unter anderem die starke Zuwanderung in Kyoto. Sie sorgte, in Kombination mit der geographischen Beckenlage, rasch für Platzmangel und hatte als Konsequenz, dass dicht aneinandergebaut werden musste. Die schmalen Straßenfronten machten auch aus ökonomischer Sicht der Bewohner:innen/Nutzer:innen Sinn. Einerseits boten sie möglichst vielen Händlern Platz für Verkaufsraum und andererseits sorgten sie für eine reduzierte Steuerlast, da die Gebäude anhand der Fassadenlänge zur Straße besteuert wurden.

Varianten

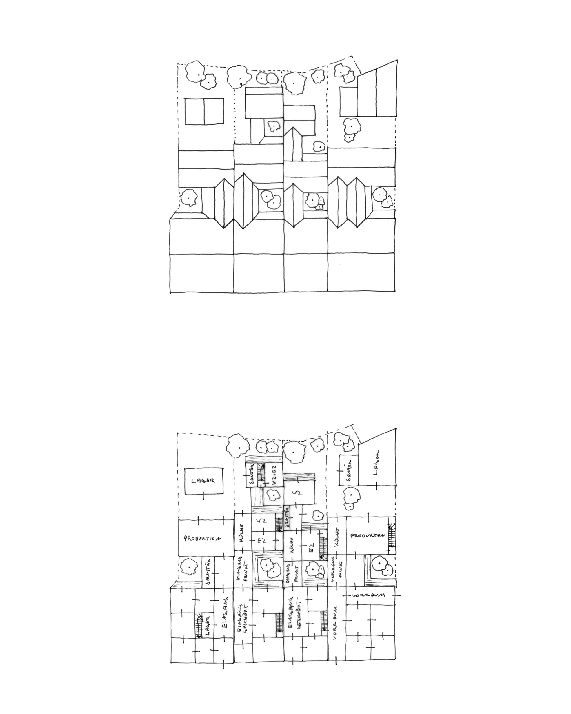
Ein für den Entwurf interessanter und relevanter Faktor war, dass das Machiya per se nur eine Straßenfassade hat. War ein Machiya am Eck situiert, wurde die Längsseite des Gebäudes oft so behandelt, als fehle der Nachbar. Die einzigen Merkmale, die darauf hinwiesen, dass das Gebäude den Blockrand schloss, waren kleine Öffnungen, die zusätzlich für ein Maß an Licht und Luft sorgten. Um zunächst ein Gefühl für das Verhältnis zwischen Machiya- und Bauplatzgröße zu bekommen, wurde die zu bebauende Fläche mit bestehenden Machiya Grundrissen aufgefüllt. Dabei wurde untersucht wie viele Gebäude sinnvoll auf dem Bauplatz errichtet werden können und welche Vorteile die verschiedenen Konstellationen boten. 

vier voneinander getrennte Einheiten

Aufgrund der inhärenten Unterschiede zwischen japanischem und europäischem Körpermaß, wurden die Grundrisse für den weiteren Entwurfsverlauf leicht „aufskaliert“. Die beiliegende Skizze zeigt vier voneinander getrennte Einheiten, die die Ausgangslage für das weitere Entwerfen bildeten. Dadurch ist das Konstruktionsprinzip gut ablesbar, das sich auf massive Außenwände und einer leichten Tragstruktur im Inneren stützt. Diese Einheiten wurden anschließend in einer Vielzahl an Varianten mit bereits vorhandenen aber auch neu interpretierten machiyaartigen Grundrisskonzepten gefüllt.

Variante
Variante

Am Beispiel der folgenden Skizzen sind sowohl vier rein als Wohngebäude konzipierte Machiyas, als auch eine über das Grundstück verteilte Nutzungsmischung, die von Produktion, Handel bis zum Wohnen reicht, zu erkennen.

Überlagerung zweier um 90 Grad verdrehter Grundrisse

Die zuerst angedachte reine Südwest Ausrichtung des Gesamtkomplexes, stellte sich schnell als unpassend für den Ort heraus. Die von den Machiyas inspirierte einseitige Straßenfront, reagierte städtebaulich zu wenig auf den Kontext und wirkte beinahe wie ein Fremdkörper. Die Antwort darauf war schließlich, wie in der nebenstehenden Skizze ersichtlich, die Überlagerung zweier um 90 Grad verdrehter Grundrisse.

Konstruktionskonzept über Felder
Eingangskorridor

Als Resultat wurde der Grundriss durch die sich überschneidenden Baugrenzlinien in Felder geteilt. Diese ehemaligen „Außenwände“ waren schließlich in einem folgenden Schritt Grundlage für das Konstruktionskonzept. Des Weiteren bildete die nun in zwei Richtungen orientierte Straßenfassade das Eck des Blockrands.Aus den zuvor erwähnten Einheiten wurde durch die Überlagerung ein einzelnes Gebäude, das sich feldartig über den gesamten Bauplatz zieht. Ein weiteres vom Machiya inspiriertes Gestaltungselement ist der Eingangskorridor, der sich von der Straße ausgehend bis in den Innenhof zieht und durch seine netzartige Ausbildung die Wirkung des Feldes im Grundriss zusätzlich verstärkt.

Konstruktion

Wie in zuvor gezeigten Darstellungen ersichtlich, sind Machiyas größtenteils rein aus Holz konstruiert. Um diese Eigenschaft nicht einfach zu übernehmen, wurde auch Ziegel integriert. Die Ziegelstruktur gliedert den Bauplatz, wie in vorherigen Entwurfsskizzen dargestellt, entlang der Baugrenzlinien der miteinander verschnittenen Machiyas in einzelne Felder. Innerhalb dieser von Ziegel begrenzten Felder befindet sich die für sich stehende Holzkonstruktion, die durch die massiven Wände ausgesteift ist. 

verschnittene Machiyas

Diese trägt sich selbst und die Geschossdecken, während die Ziegelkonstruktion ebenfalls sich selbst und die Last des Daches abtragt. Um die Trennung der beiden Bausubstanzen nicht zu überzeichnen und die Ziegelstruktur nicht zu massiv wirken zu lassen, wird sie großflächig aufgelöst und vor allem im Bereich der Geschossdecken sowie Fassaden von der Holzkonstruktion durchstoßen. Ein wesentlicher Punkt war daher das Aufeinandertreffen der beiden Materialien. Die tektonische Fügung von Holz und Ziegel, als auch deren Dimensionierung wurde mithilfe zahlreicher Skizzen und Varianten erarbeitet und verfeinert.

Holzkonstruktion und Ziegelstruktur (Skizze)
Holzkonstruktion und Ziegelstruktur (Skizze)

Die Holzkonstruktion besteht aus 3 Typen von Stützen:

• 120x120 mm: Diese befinden sich in den Ecken, leicht abgesetzt von der Wand, sowie frei im Raum.

• 200x200 mm: Pro Raum ist eine dieser Stützen vorgesehen, in Anlehnung an die „Hashiras“ – die größer dimensionierten Stützen von Machiyas, die als Hauptanschlusspunkte der Konstruktion fungieren.

• 240x120 mm: Diese Stützen schließen jeweils einseitig an die Wand an.

Holzkonstruktion und Ziegelstruktur (Axonometrie)
Holzkonstruktion und Ziegelstruktur (Grundrissausschnitt)

Die Ziegelstruktur besteht aus 240 mm starken Ziegelwänden. 

Diese ziehen sich im Bereich des Blockrands über zwei Geschosse und im Inneren des Blocks über eines. Zahlreiche Unterzüge über den Öffnungen in den tragenden Wänden ermöglichen es die Struktur weitgehend aufzulösen und dennoch das Dach konstruktiv aufzulagern.

Verbunden sind die Stützen über Balken, auf denen feinere Querbalken aufliegen, die sowohl die Decken als auch die abgehängten Decken tragen. Die Aussteifung erfolgt einerseits über die Deckenflächen selbst, andererseits über die Ziegelstruktur, an der die Holzkonstruktion teilweise anliegt. Diese Art der Konstruktion ergibt nicht nur ein dichtes Netz sichtbarer Elemente, sondern erlaubt es auch einzelne Felder gezielt offen zu lassen.

Als Entwurfsgrundlage für das Dach diente sowohl die traditionelle Machiya-Bauweise als auch der klassische stehende Dachstuhl. Daraus resultierte eine Mischform, welche die zentralen Merkmale vereint. Die gesamte Dachkonstruktion wurde aufgeständert. Die Sparren liegen auf massiven Querbalken auf, die die Distanz zwischen den Ziegelwänden überspannen. Die straßenseitig zugewandten Dachflächen wurden parallel zum First geteilt und in der Höhe versetzt. Dies sorgt für zusätzliches Licht aus den Richtungen Südost beziehungsweise Südwest und ermöglicht eine höhere Fensterfront an der hofseitigen Fassade. 

Dachkonstruktion (Skizze)
Dachkonstruktion (Skizze)

Der sich daraus ergebende Zwischenraum wird mit einer machiyaartigen Tragstruktur, bestehend aus feinen Holzstehern und Querbalken ausgefüllt. Während in den Regelgeschossen die Stützen der Holzkonstruktion im Raum stehen und so auch raumbildende Funktionen übernehmen, ist das im Dachgeschoss nicht der Fall. Hier lagern die Stützen direkt auf den Ziegelwänden, wodurch eine freie Grundrissgestaltung ermöglicht wird. Um die Trennung zwischen Regel- und Dachgeschoss nicht zu klar auszuführen, durchstoßt die Holzkonstruktion die Geschossdecke zum Dachgeschoß teilweise bis auf Sitzniveau und kann so im Rahmen räumlicher Gestaltung genutzt werden.

Dachkonstruktion (Axonometrie)
Dachkonstruktion (Schnitt)
Lageplan

Nutzung

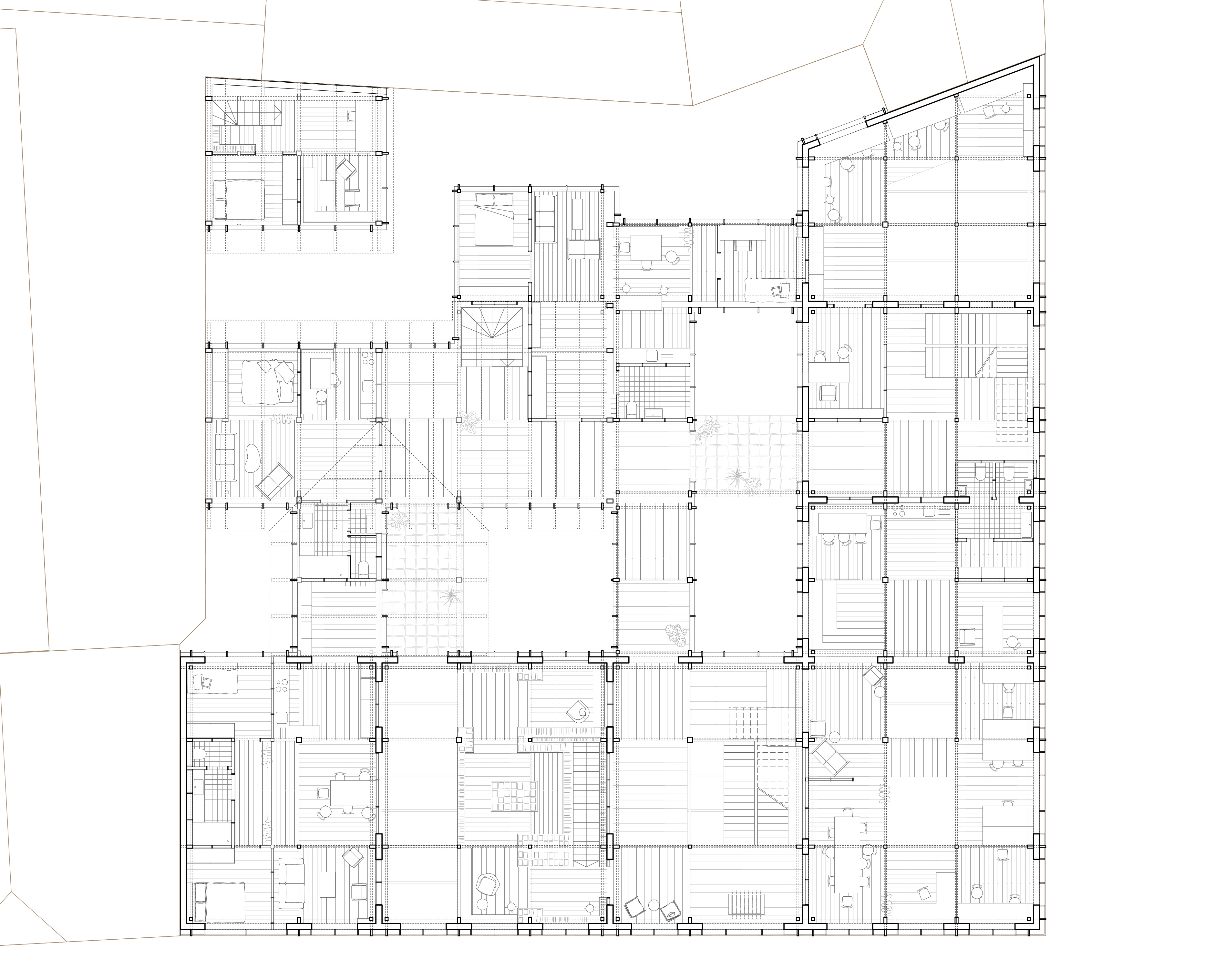
Ein weiterer, stark von der Bautypologie der Machiyas beeinflusster Faktor, ist die durchmischte Nutzung des Gebäudes. Da Machiyas, wie bereits erwähnt, unterschiedlichste Gewerke vereinen, wurde dieser Gedanke auch in der Programmierung dieses Entwurfs aufgegriffen. Aus diesem Grund wurde das Gebäude mit verschiedensten Nutzungen gefüllt, die von Gewerbe, Gastronomie und Produktion bis hin zu Wohnnutzungen reichen. Öffentliche Funktionen befinden sich überwiegend im Erdgeschoss, während der Anteil an Wohnfläche mit zunehmender Geschosszahl steigt.

Erdgeschoss

Das Erdgeschoss fungiert als halböffentliche Zone. Großzügige Erschließungsflächen ziehen sich von der Straße bis hin zum inneren Hof und vernetzen sämtliche vorhandene Funktionen, sowie die kleineren Innenhöfe. Im Zentrum des Gebäudes liegt ein Gemeinschaftsbereich, der für alle dort beschäftigten Personen zur Verfügung steht. Trotz der dreigeschossigen Bebauung im Bereich des Blockrandes, sorgt die Vielzahl der kleinen Innenhöfe für ausreichende natürliche Belichtung.

erstes Obergeschoss

Im ersten Obergeschoss treten die kommerziellen Nutzungen zugunsten der Wohnbereiche zurück. Auch in diesem Geschoss bleiben die Nutzungen durch Erschließungskorridore miteinander verbunden. Da der Bereich im Inneren des Blockrandes ein Geschoss weniger aufweist, befindet man sich an dieser Stelle bereits im Dachgeschoss, was eine freiere Grundrissgestaltung erlaubt. Innenräumlich gesehen sind hier die meisten Öffnungen im Boden vorhanden, die visuelle Verbindungen zum Erdgeschoss schaffen und weitere Teile der Konstruktion freispielen.

zweites Obergeschoss

Das zweite Obergeschoss beinhaltet, abgesehen von einer Atelierwohnung, ausschließlich Wohnflächen. Die Dachlandschaft im Inneren des Blocks und die Erschließung bieten Platz für gemeinschaftlich nutzbare Bereiche und großzügige Terrassenflächen.

Dachdraufsicht

Die Dachdraufsicht zeigt, wie das Gebäude den Blockrand klar schließt, sich aber Richtung Innenhof immer weiter auflöst und zu einer freieren Struktur wird.

Im Schnitt A ist zu erkennen wie sich die Ziegelwände beinahe komplett auflösen und die Holzkonstruktion die räumliche Gestaltung im Inneren als auch Äußeren des Gebäudes gliedert. Das halböffentliche Erdgeschoss verbindet die Straße mit dem Innenhof und belebt die gesamte Zone spürbar.

Der Schnitt B zeigt die Dichte an Innenhöfen und Begrünung, die für natürliche Belichtung und Ventilation sorgen. Zu sehen ist auch die Dachlandschaft, die sich vom Blockrand bis ins Innere des Grundstüks zieht.

Schnitt A
Schnitt B

Project by: Lois Xaver Yukio Stoisser

Supervisor Alex Lehnerer