WS 2024 Wiggle Room
Sabeth Moschitz, Lea Wagner.

Schwarzplan
Lageplan
Ansicht Ost
Ansicht Nord
Ansicht West
Ansicht Süd
Längsschnitt
Querschnitt
Grundriss Regelgeschoss
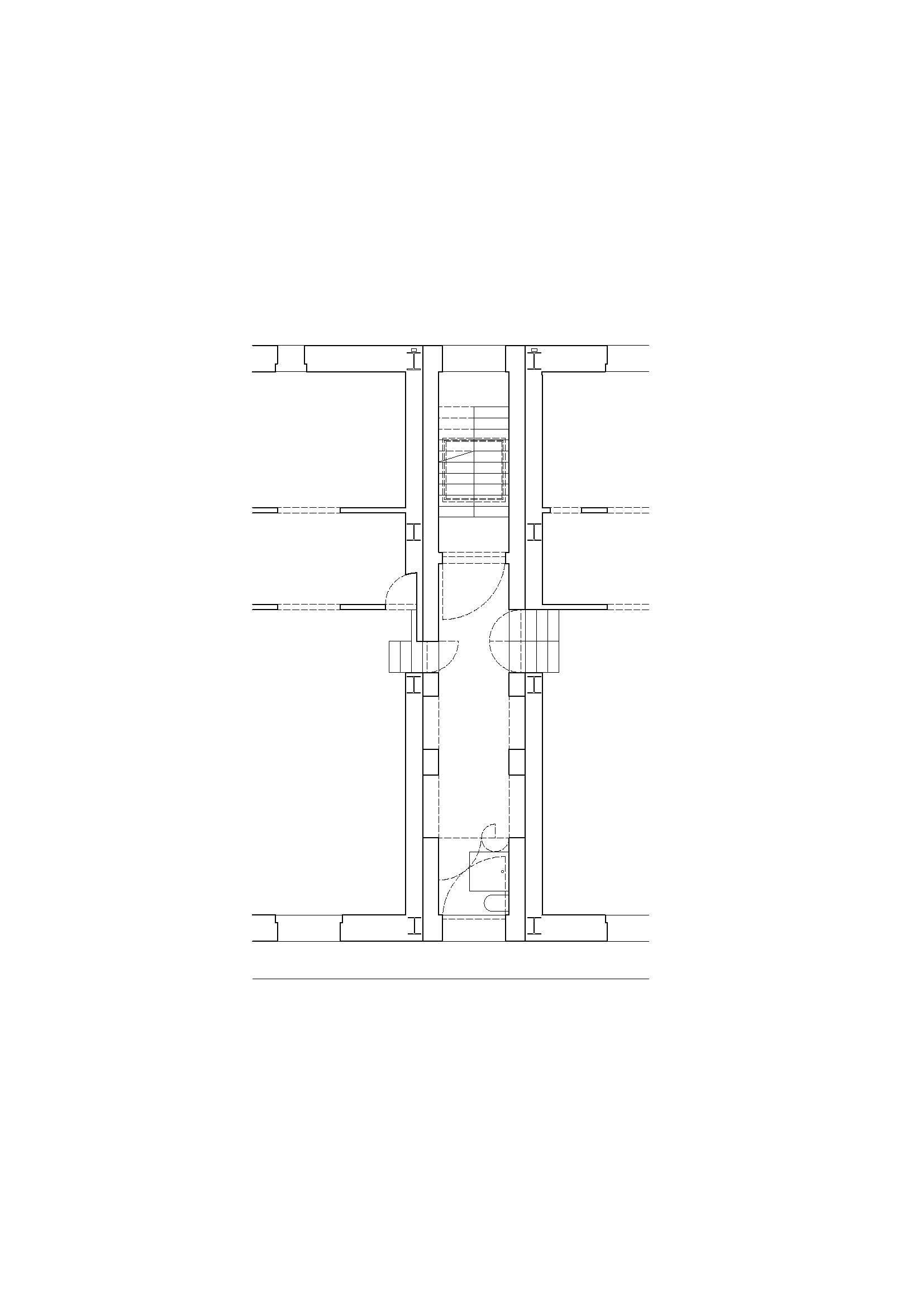
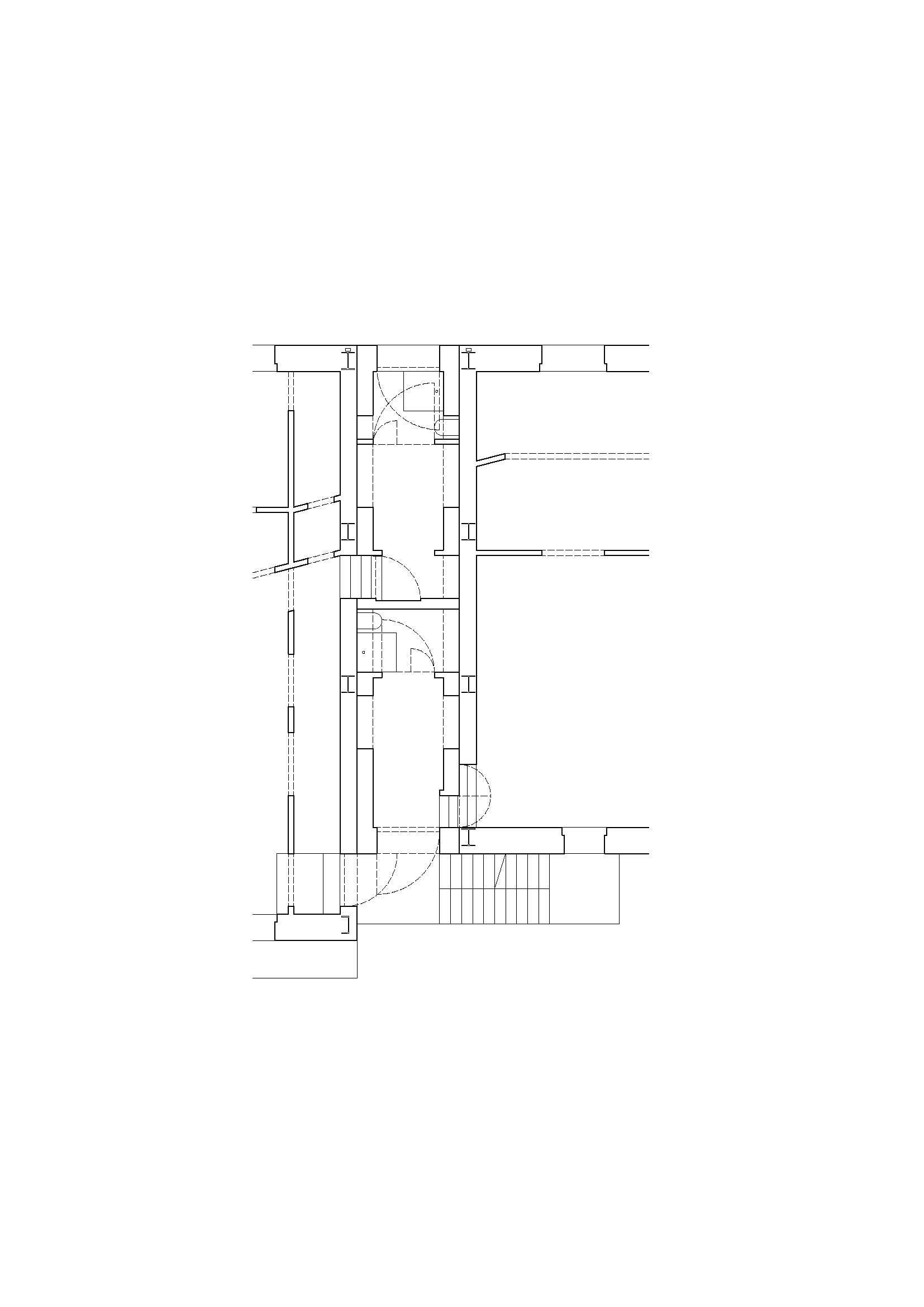
Detail Grundriss Küche und Bad
Detail Dach
Erste Aufgabe: Kiste für ein Streichmaß

Projekt: Sabeth Moschitz, Lea Wagner

Studio Wiggle Room